
球閥知識
閥門首頁 > 閥門知識 > 球閥知識 > 閥型號規格 1、V型球閥: 含VQ40F、VQ70F、VQ641H、VQ670F、VQ940F以及VQ671H等等。 2、不銹鋼球閥: 含Q41F、Q941F、Q641H以及Q941H等等。 3、低溫球閥...
以下是球閥尺寸參數的對照表,可以根據需要來選擇不同的規格。以上表格中,Q41F、Q347F、Q961F型號適用于一般用途的球閥,Q41H、Q347H、Q9...
閘閥耐用還是球閥耐用,哪個壽命長?這是許多工程師和用戶在選擇閥門時經常遇到的問題。實際上,要判斷閥門的耐用性和壽命長短,需...
上裝偏心半球閥和側裝半球閥性能區別上裝式偏心半球閥選型 上海湖泉閥門集團有限公司主營閥門有:截止閥,電動截止閥因堆焊不同合金(或...
o型球閥和v型球閥的區別是什么(優缺點)?結構不同:V型球閥是球體在內部旋轉,O型球閥是球體在水中旋轉。 工作原理不同:V型球閥是通過...
固定式球閥和浮動式球閥區別在哪(結構、外觀)?結構機理上的不同一般來說,球閥的硬密封指的是金屬和金屬之間的密封,密封球體和...
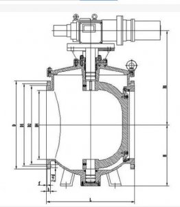
上海湖泉閥門集團有限公司耐腐蝕 電動球閥 1.6MpaDN150是一種高性能的閥門產品,具有廣泛的應用前景和重要的工業價值。本文將對其特點進...
手動閥門改成自動閥門 怎么改裝的?教你幾招就明白了購自動閥門如果需要將手動閥改成自動閥門,首先需要選購一款合適的自動閥門。在...
常用的球閥型號: V型球閥型號:VQ40F、VQ640F、VQ940F、VQ641H、VQ941H、VQ70F、VQ670F、VQ970F、VQ71H、VQ671H、VQ971H。 保溫球閥型號:BQ41F、BQ641F、B...
電動球閥連接處漏水怎么解決的,怎么修?1、檢查電動球閥密封結構有時候,電動球閥漏水的原因是由于密封結構損壞導致的。這時候,您可...